Ir al contenido

2x6 Fans _Endura Twist Horizontal Renson

https://www.system-air.es/web/image/product.template/22136/image_1920?unique=b8934db

Capacidad de aire entre 72 m3/h
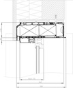
El Endura Twist es un innovador sistema de ventilación con recuperación de calor eficiente. La ventilación se coloca en la ventana y, gracias a su instalación sin conductos de aire, es ideal para pequeñas renovaciones, porches y espacios de vida al aire libre. Los módulos regeneradores únicos almacenan el calor del aire extraído y lo devuelven al aire suministrado cuando los módulos cambian de dirección.

Instalación sin canales
Módulo regenerador único: hasta 81% de eficiencia térmica
Libre de condensación y escarcha.
Función de bypass automático.
Puede solicitar el manual del producto a info@system-air.es. Así como el estudio de su instalación para la mejor opción.
Acabado top 300.
no incluye control.
medida mínima 2000 mm.
medida máxima 6000 mm.

PLAZO DE ENTREGA: según stock / consultar precios especiales para profesionales.

0,00 € 0.0 EUR 0,00 €

Not Available For Sale

  • Marca
  • medidas Renson
  • Acabados renson Seleccionar

Esta combinación no existe.

Marca: Renson