Ir al contenido

Flux+Flat 370 ERV Renson

https://www.system-air.es/web/image/product.template/22675/image_1920?unique=b8934db

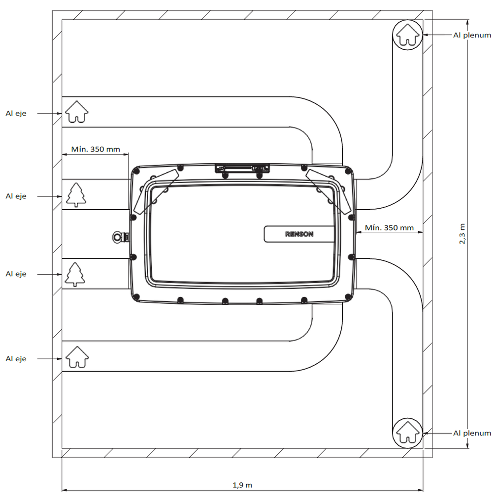
Flux+ 370 Flat ERV es una unidad de ventilación central controlada por demanda con recuperación de calor para la extracción y suministro controlados de aire tanto en viviendas como en apartamentos. El control de demanda central ajusta automáticamente el caudal en función de mediciones continuas de humedad, CO2, COV y temperatura. El volumen nominal máximo es de 225 m³/h por unidad, garantizado hasta 200Pa de contrapresión.

3.769,95 € 3769.95 EUR 3.769,95 €

Not Available For Sale

  • Marca

Esta combinación no existe.

Marca: Renson